Ons kantoor is lid van Baerz & Co Luxury Homes; een internationaal platform dat exclusieve woningmakelaars met elkaar verbindt. Neem contact op met ons secretariaat voor meer informatie over het landelijke aanbod, waarvan u hieronder een selectie kunt bekijken.

RHENEN
Grebbeweg 47 - 3911 AT
هولندا

Wistik Zonnenberg profile image
Wistik Zonnenberg
Register Makelaar Taxateur/ Eigenaar
€1,695,000 k.k.
منطقة المعيشة
288m2
حجم الأرض
1058m2
غرف النوم
8

الوصف

تعرض هذه الفيلا المنفصلة في رينين توازناً متناغماً بين المساحة والرقي، حيث تقع على قطعة أرض سخية تبلغ مساحتها 1,058 متر مربع. يؤدي ممر من الحصى إلى مدخل أنيق، مما يمنح العقار طابعاً متحفظاً وواثقاً. في الداخل، تغطي مساحة المعيشة البالغة 288 متر مربع تسع غرف، من بينها ثمانية غرف نوم متعددة الاستخدامات يمكن تكييفها لاستضافة الضيوف أو العمل أو الترفيه. تنعكس الفخامة الهادئة للفيلا في المواد الرفيعة مثل الأرضيات المتعرجة وتفاصيلها المعمارية الأصلية من عام 1941، التي جددت خلال أعمال الترميم في عامي 2021 و2022.

غرفة المعيشة الرئيسية مشرقة وقابلة للتكيف، مع إضاءة طبيعية وفيرة وموقد يعمل بالحطب يضفي دفئًا على المكان. المطبخ مجهز بأجهزة مدمجة عالية الجودة ويمتد نحو منطقة طعام رحبة، تتصل بسلاسة بغرفة الخدمات لزيادة العملية. التدفئة الأرضية في المدخل والمطبخ والحمام ودورة المياه تضمن الراحة اليومية، في حين توفر التهوية الميكانيكية والعزل الكامل راحة البال.

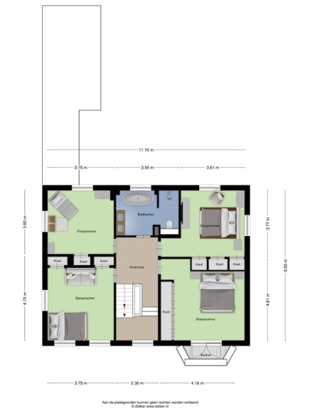
في الطابق العلوي، تقدم الطابق الأول أربع غرف نوم وحماماً مصقولاً بعناية مع حوض استحمام مستقل. أما الطابق الثاني فيحتوي على أربع غرف نوم إضافية وصالة واسعة، ما يجعلها ملاذاً هادئاً للاسترخاء أو الترفيه. النوافذ المزدوجة العزل والستائر الخارجية توفر راحة طوال العام. تشمل المزايا أيضاً نقطة شحن للسيارات الكهربائية وألواح شمسية ومرآباً، مما يجعل الفيلا تجمع بين الحداثة والخلود.

يحيط بالمنزل حديقة ناضجة تدعو للعيش الهادئ في الهواء الطلق، وتكملها شجيرات الورد التقليدية وحدود محددة بوضوح. بفضل موقعها المثالي في رينين، فإن جميع وسائل الراحة قريبة، بما في ذلك محطة السكك الحديدية NS والمتاجر والنوادي الرياضية والمطاعم المحلية. هذه الفيلا الفاخرة المعروضة للبيع في رينين تقدم توليفة نادرة من الهدوء وسهولة الوصول وجودة راقية متوارية.

استكشف Rhenen مع Baerz، مستشارك الموثوق للعثور على العقارات الشخصية

تتطلب سوق العقارات الحصرية في رينين أكثر من مجرد قوائم السوق. يتيح المستشارون الوصول للعقود الخاصة والممتلكات التراثية غير المتاحة للعامة. خبراتهم في التقييم والتفاوض تضمن قرارات استراتيجية آمنة للمشترين والبائعين. الإرشاد المهني يسهل عمليات الشراء ويحمي المصالح طوال المعاملات المعقدة.

تجنب المزالق الشائعة

غالبًا ما يهدر المشترون الدوليون وقتًا ثمينًا أثناء التنقل بين القوائم المكررة أو القديمة أو المضللة عبر الإنترنت، خاصةً أن ما يقرب من 30% من العقارات الفاخرة لا تظهر في السوق على الإطلاق.
يمثل وكلاء البائعين مصالح البائع وليس مصالحك، وحتى مجرد الاستفسار عن عقار قد يؤدي إلى تسجيلك كـ "عميل" لديهم دون موافقتك.
مع Baerz Property Finders & Advisors، يمكنك تجنب هذه المزالق تمامًا.
نحن نعمل حصريًا نيابة عنك، ونقدم لك تمثيلاً مستقلاً، وإرشادًا شفافًا، وإمكانية الوصول إلى كل عقار متاح، بما في ذلك الفرص الخاصة وغير المطروحة في السوق والتي لا يراها الآخرون أبدًا.

هل ترغب في معرفة كيفية الحصول على مستشار عقاري شخصي؟ اتصل بنا لتتعرف على كيفية تمثيل مصالحك وفتح السوق بالكامل أمامك.

الميزات

الألواح الشمسية
مرآب
نقل الملكية
السعر المطلوب
€ 1.695.000 k.k.
الحالة
Available
القبول
In Concert
المرجع
07996
البناء
نوع المنزل
Villa
نوع المبنى
Detached House
فترة البناء
1941
تقييم الطاقة
C
غرف النوم
8
الحمامات
1
المساحات السطحية والحجم
منطقة المعيشة
288 m2
مساحة داخلية أخرى
45 m2
المساحة الخارجية الملحقة بالمبنى
4 m2
الحجم بالأمتار المكعبة
1232 m3
حجم الأرض
1058 m2
المرافق
Garage
Garden
Internetconnection
Outdoorawnings
Solarpanels
Ventilation
Baerz & Co Property Brochure

كتيب

فيديوهات

مخططات الطوابق

Zonnenberg Makelaardij

Kerkewijk 108
3904 JG Veenendaal

info@zonnenbergmakelaardij.nl
+31 318 559600

www.zonnenbergmakelaardij.nl

طلب معلومات / مشاهدة

Wistik Zonnenberg profile image
Wistik Zonnenberg
Register Makelaar Taxateur/ Eigenaar