Baerz & Co is een landelijk samenwerkingsverband van zorgvuldig geselecteerde boutique luxury makelaars. Samen vormen wij één netwerk, met één gedeeld aanbod. De woningen die u op onze website ziet, zijn afkomstig van alle aangesloten kantoren binnen Baerz & Co. Daardoor is niet ieder object rechtstreeks door ons kantoor in verkoop, maar door een gespecialiseerde collega binnen ons netwerk. Heeft u een woning gevonden die u aanspreekt en wilt u meer informatie? Dan brengen wij u graag persoonlijk in contact met de betreffende verkoopmakelaar, zodat u direct en zorgvuldig wordt begeleid.

AMSTELVEEN
Amsteldijk Noord 105 - 1183 TH
Netherlands

€2,850,000
Living Area
309m2
Plot Size
1930m2
Bedrooms
4

Description

Amsteldijk Noord 105

Amsteldijk Noord 105 is a true oasis of tranquility, situated in one of the most beautiful locations along the Amstel River. This exceptionally stylish semi-detached residence of approximately 309 m² (174 m² living area and 135 m² additional internal space), including an adjoining garage, is set on a generous plot of no less than 1,930 m² and offers the feeling of a fully detached home.

Here, you will experience a permanent holiday atmosphere, where privacy and serenity allow you to escape the hustle and bustle of city life. The charming thatched-roof property provides all the comforts for a larger family, including space for an au pair, a home office, or even a bed & breakfast. The spectacular garden further offers endless possibilities, such as the creation of a guest house, pool house, informal care residence, or external office space.

Naturally, there is ample parking available on private grounds, while your own private mooring on the Amstel is just a few steps away. In short, this is a place where living, working, and enjoying life come together in complete harmony, surrounded by greenery and water, just moments from Amsterdam.

The property not only offers a prime location but also excellent accessibility. Several primary and secondary schools are located nearby, including The International School and The British School. Sports enthusiasts will also feel right at home, with opportunities for running, cycling, rowing, or joining one of the nearby sports clubs. Additionally, the Gelderlandplein shopping centre and the Zuidas business district—with its wide range of shops, restaurants, and vibrant activity—are easily and quickly accessible.

In short, this semi-detached home on the Amstel offers an unparalleled lifestyle and a unique opportunity to enjoy the very best of both city living and nature. Do not hesitate to make this dream home your own—contact us today to arrange a viewing and experience the beauty and possibilities of this exceptional property and its stunning garden.

Layout

Basement level
A full-fledged floor of approximately 107 m² with a ceiling height of circa 1.92 m. The basement includes ample storage space, a laundry room, technical room, separate toilet with washbasin, a living room with open kitchen and fireplace, French doors leading to a covered terrace and the garden, a bedroom, and a bathroom equipped with a toilet, washbasin, and shower.

Ground floor
Entrance via a stone staircase to the front terrace, leading into the hall with a separate toilet and washbasin. A secondary hall features beautiful wooden doors originating from a former Belgian bank building, as well as a matching staircase. The intimate living room includes a fireplace and connects to a terrace with panoramic views over the Amstel. The spacious kitchen-diner is equipped with air conditioning, a fireplace, bespoke built-in cabinetry, and access to a second deep terrace overlooking the lush garden.

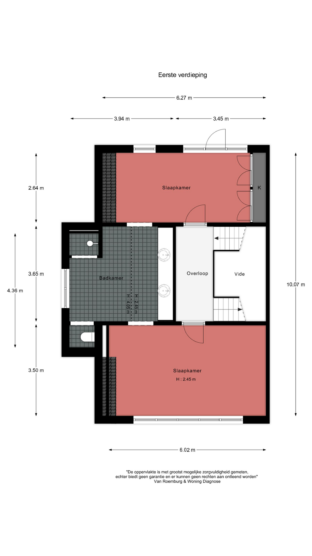
First floor
Landing/mezzanine, second bedroom at the rear with a pleasant view of the garden, third bedroom with fireplace and panoramic views of the Amstel. A generous, high-ceilinged en-suite bathroom features a freestanding bathtub, walk-in shower, separate toilet, bespoke double vanity unit, and a heated towel rail.

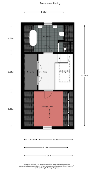
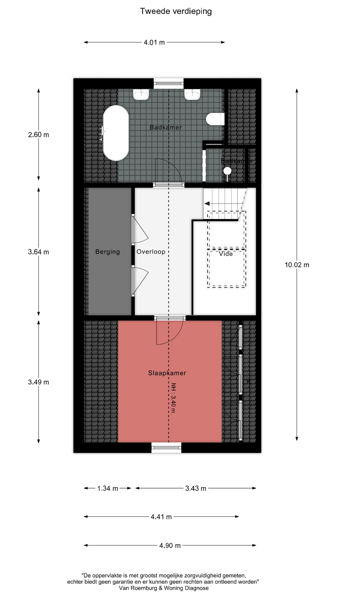
Second floor
Landing/mezzanine, storage room, fourth bedroom with stunning views of the Amstel, and a third bathroom overlooking the garden, equipped with a freestanding bathtub, walk-in shower, bespoke double vanity unit, and toilet.

Garden
The front garden is enclosed by a beautiful electrically operated wrought-iron gate and is attractively landscaped with a variety of plants and flowers. The driveway offers space for multiple cars.

The exceptionally large rear garden, accessible via a side entrance, features a covered terrace directly adjacent to the house and a detached storage unit (approximately 22 m²). The majority of the garden offers a serene, natural setting with ample opportunities for additional structures such as a guest house, pool house, informal care unit, or office.

Garage
Spacious adjoining garage (approximately 27 m²) with a ceiling height of circa 2.72 m, underfloor heating, and direct internal access to the house. The front features double outward-opening wooden doors, while the rear door provides direct access to the garden.

Measurement report (NEN 2580)
- Gross floor area: 411 m²
- Usable living area: 174 m²
- Other internal space: 135 m²
- Building-related outdoor space: 20 m²
- External storage space: 22 m²
- Volume (living function): 523 m³
- Gross volume (living function): 965 m³
- Volume (external storage): 50 m³

The property has been measured in accordance with the NVM Measurement Instruction. This instruction is intended to provide a more uniform method of measuring to indicate usable floor area. Differences in measurement outcomes cannot be entirely excluded due to interpretation differences, rounding, or limitations during measurement.

Details
- Freehold property;
- Plot size: 1,930 m²;
- Built in 1935 under architecture by architect Loggers;
- Fully renovated between 2007 and 2010;
- Stained-glass windows originating from the Peace Palace;
- Wooden window frames with double glazing;
- High-quality wooden floors sourced from historic barracks;
- Antique French oak interior doors and frames;
- Cast-iron radiators with decorative detailing;
- Basement equipped with underfloor heating (excluding laundry room);
- Four open (gas) fireplaces;
- Thatched and insulated roof (2007);
- Remeha Quinta Pro gas-fired central heating system;
- ACV Smart 53KW boiler;
- Delivery in consultation.

We have gathered this information with the greatest of possible care. However, we will not accept any liability for any incompleteness, inaccuracy or any other matter nor for the consequences of such. All measurements and surfaces stated are indicative. The purchaser has a duty to investigate any matter that may be of importance to him or her. The estate agent is the adviser to the seller with regard to this residence. We advise you to engage an expert (NVM registered) estate agent who will guide you through the purchasing process. Should you have any specific desires with regard to the residence, we advise you to make these known as soon as possible to your purchasing estate agent and have an independent investigation carried out into such matters. If you do not engage an expert, you will be deemed as considering yourself to be sufficiently expert to be- to oversee all matters that could be important. The NVM conditions apply.

Features

Transfer of ownership
Asking Price
€ 2.850.000
Status
beschikbaar
Acceptance
in overleg
Construction
Kind of house
Herenhuis
Building type
twee onder een kapwoning
Construction period
1935
Roof type
zadeldak
Bedrooms
4
Bathrooms
3
Surface Areas And Volume
Living Area
309 m2
Other indoor space
0 m2
Exterior space attached to the buildinge
20 m2
External storage space
22 m2
Volume in cubic meters
965 m3
Plot Size
1930 m2
Baerz & Co Property Brochure

Brochure

Videos

Nelisse Makelaarsgroep

Statenlaan 128
2582 GW Den Haag

info@nelisse.nl
+31 70 350 14 00

www.nelisse.nl

Information / Viewing request

Nicole Vrolijk profile image
Nicole Vrolijk
Real Estate Agent

Buying a Luxury Property in Amstelveen

Amstelveen offers refined residences, a cosmopolitan atmosphere, and exceptional connectivity. The blend of green areas, international amenities, and community sophistication continues to captivate global buyers and families seeking both privacy and vibrant urban connections.