Baerz & Co is een landelijk samenwerkingsverband van zorgvuldig geselecteerde boutique luxury makelaars. Samen vormen wij één netwerk, met één gedeeld aanbod. De woningen die u op onze website ziet, zijn afkomstig van alle aangesloten kantoren binnen Baerz & Co. Daardoor is niet ieder object rechtstreeks door ons kantoor in verkoop, maar door een gespecialiseerde collega binnen ons netwerk. Heeft u een woning gevonden die u aanspreekt en wilt u meer informatie? Dan brengen wij u graag persoonlijk in contact met de betreffende verkoopmakelaar, zodat u direct en zorgvuldig wordt begeleid.

AMSTELVEEN
Burgemeester Rijnderslaan 646 - 1185 MC
Netherlands

€1,775,000
Living Area
233m2
Plot Size
N/A
Bedrooms
3

Description

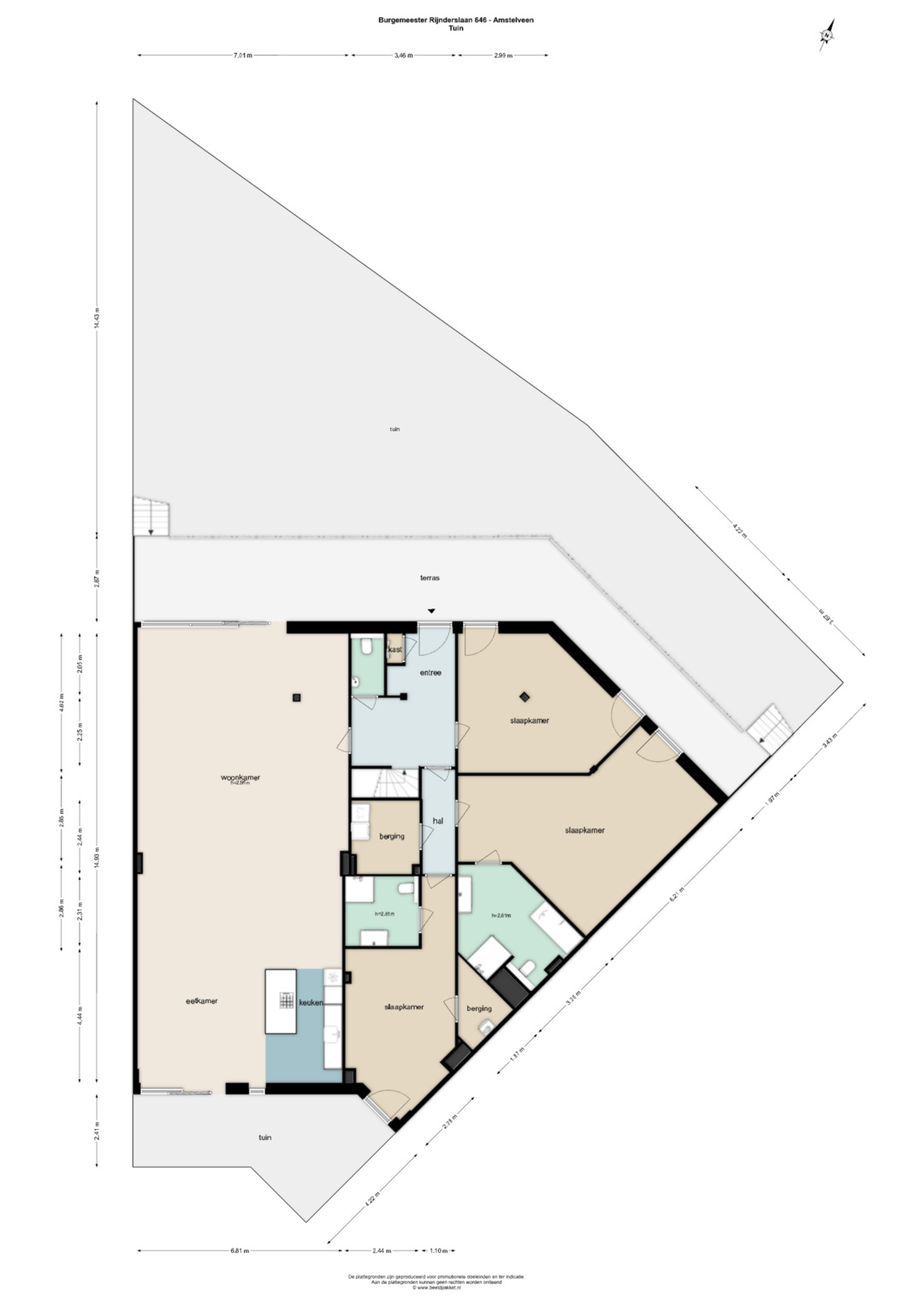
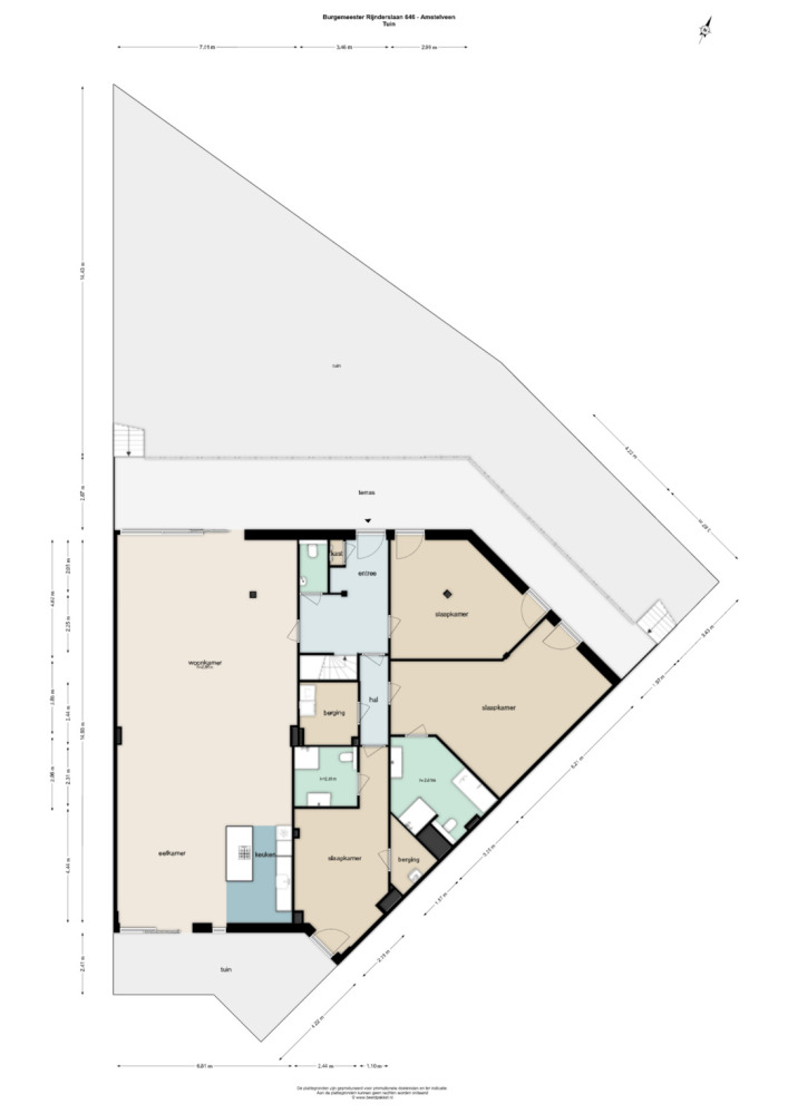
Move-in Ready, Luxury Ground-Floor Apartment of 232 m² in The Mayor

Located in the prestigious residential complex The Mayor, this exceptional ground-floor apartment offers over 232 m² of living space, along with a spacious garden and terrace. A home of absolute top class, finished to the highest standards and fully furnished with luxury furniture from Co van de Horst. Here, you live at a five-star level—no work required: simply unpack your bags and start living.

Impressive Living Area with Custom Finishes

The expansive living space of nearly 90 m² combines a stylish lounge area, dining room, and modern open kitchen. Everything is sleekly plastered and features a stunning PVC herringbone floor, luxurious window coverings, bespoke lighting, and high-end interior design. Large windows provide an abundance of natural light and create a seamless connection to the garden.

Luxury Kitchen

The kitchen boasts a modern design with high-quality built-in appliances, a generous cooking island, and ample workspace and storage. A perfect setting for cooking enthusiasts and hosting dinners with friends or family.

Three Spacious Bedrooms and Two Bathrooms

The apartment offers three full-sized bedrooms, each with excellent proportions. The master bedroom features a luxurious en-suite bathroom and a ?????, private setting. The second bathroom is also modern and centrally located.

Ample Storage and Internal Storage Room in the Parking Garage

In addition to two internal storage rooms, the apartment includes a generous indoor storage space of 21 m² in the parking garage, accessible both from the apartment and directly from the garage. Ideal for storage, hobbies, or a wine collection.

Unique Outdoor Space

At the front, you’ll find a wonderful and very spacious garden, while at the rear there is a large terrace spanning the full width of the apartment.

Two Private Parking Spaces

The underground parking garage provides two private parking spaces—comfortable, secure, and highly valuable in this location.

Living in The Mayor

The Mayor is known for its luxurious appearance, high-quality construction, excellent insulation, and stylish, green surroundings. The complex is centrally located near Stadshart Amstelveen, various sports and recreational facilities, premium amenities, public transport (including the Amstelveen tram line), and main roads leading to Amsterdam and Schiphol.

Key Features

• Living area: 232.7 m²
• Internal storage: 21.3 m²
• 3 bedrooms, 2 bathrooms
• Fully luxuriously furnished – move-in ready
• Garden and large terrace
• 2 private parking spaces in underground garage
• Quick transfer possible
• Various amenities including: M-Exclusive concierge services, The Mayor Lounge (residents’ living room), The Mayor Reformer Club (gym & Pilates studio), My Pup parcel service, and a secured complex
• Located in the sought-after The Mayor complex
• Dedicated property website: burgemeesterrijnderslaan646.nl
• Asking price: €1,775,000 costs for buyer

This information has been compiled with due care. However, we accept no liability for any incompleteness, inaccuracies, or otherwise, or the consequences thereof. All stated measurements and surface areas are indicative. NVM conditions apply.

Features

Transfer of ownership
Asking Price
€ 1.775.000
Status
beschikbaar
Acceptance
direct
Construction
Kind of house
Benedenwoning
Building type
appartement
Construction period
2023
Energy rating
A+
Bedrooms
3
Bathrooms
2
Surface Areas And Volume
Living Area
233 m2
Other indoor space
21 m2
Exterior space attached to the buildinge
58 m2
Volume in cubic meters
877 m3
Facilities
Lift
Schuifpui
Glasvezel kabel
In woonwijk
 

Videos

Nelisse Makelaarsgroep

Statenlaan 128
2582 GW Den Haag

info@nelisse.nl
+31 70 350 14 00

www.nelisse.nl

Information / Viewing request

Nicole Vrolijk profile image
Nicole Vrolijk
Real Estate Agent

Buying a Luxury Property in Amstelveen

Amstelveen offers refined residences, a cosmopolitan atmosphere, and exceptional connectivity. The blend of green areas, international amenities, and community sophistication continues to captivate global buyers and families seeking both privacy and vibrant urban connections.