Baerz & Co is een landelijk samenwerkingsverband van zorgvuldig geselecteerde boutique luxury makelaars. Samen vormen wij één netwerk, met één gedeeld aanbod. De woningen die u op onze website ziet, zijn afkomstig van alle aangesloten kantoren binnen Baerz & Co. Daardoor is niet ieder object rechtstreeks door ons kantoor in verkoop, maar door een gespecialiseerde collega binnen ons netwerk. Heeft u een woning gevonden die u aanspreekt en wilt u meer informatie? Dan brengen wij u graag persoonlijk in contact met de betreffende verkoopmakelaar, zodat u direct en zorgvuldig wordt begeleid.

AMSTERDAM
Van Breestraat 45 - 1071 ZG
Netherlands

Nicole Vrolijk profile image
Nicole Vrolijk
Real Estate Agent
€4,000,000 k.k.
Living Area
291m2
Plot Size
115m2
Bedrooms
4

Description

Van Breestraat 45, 1071 ZG AMSTERDAM

Situated on one of the most desirable stretches of Van Breestraat, in the renowned Museum Quarter, we are pleased to offer this spacious family home of approximately 291 m², arranged over five full floors. The property is characterised by an exceptional balance of space, sustainability and living comfort, featuring playful natural light, generously proportioned yet tranquil rooms, and a warm, inviting atmosphere a home in which you will immediately feel at ease.

The property is located just a stone’s throw from P.C. Hooftstraat, Vondelpark and Museumplein. This family home offers four bedrooms, a sunny south-facing garden and multiple balconies.

Location & Accessibility
The property is ideally situated in Amsterdam Oud-Zuid, with all amenities within easy reach. These include a wide variety of shops, specialty stores and boutiques on Cornelis Schuytstraat, P.C. Hooftstraat and Beethovenstraat. For art and culture, the Museumplein and the Concertgebouw are within walking distance. The Vondelpark, perfect for walking, sports and recreation, is also just a short stroll away. Every Saturday, a charming farmers’ market takes place at Jacob Obrechtplein. The street itself is spacious, quiet and green, offering a pleasant, almost village-like atmosphere in the heart of the city. Highly regarded primary, secondary and international schools are located nearby. Accessibility is excellent, with ample public transport options in the immediate vicinity; tram and bus stops are within walking distance. Major roads are easily accessible by car. Parking is available on the public road through a permit system, and there is almost always space available directly in front of the property.
Layout

Upon entering, the playful influx of natural light immediately stands out. A large skylight at the top of the house allows daylight to flow through the central staircase and spacious atrium, creating an open and bright atmosphere throughout all floors.

Ground floor
Through the entrance, you step into the generous hallway. The character of the home is immediately evident, with high ceilings and beautiful original details preserved throughout much of the property. From the hall, you access the spacious living kitchen at the rear. This luxurious, custom-designed kitchen is fitted with high-quality built-in appliances, including two sinks (one with a Quooker), a five-burner gas stove with extractor hood, a separate oven, microwave, full-size refrigerator, freezer, dishwasher, and a warming drawer, ideal for preparing larger dinners. The kitchen also features a fireplace.

At the heart of the space is a large kitchen island with an inviting bar setup. Adjacent to the kitchen is a practical pantry, suitable for storing appliances and provisions. French doors provide access to the covered terrace and the sunny south-facing garden. The garden forms a natural extension of the kitchen, allowing you to enjoy a spacious and atmospheric living area during the summer months. Additionally, built-in cupboards and a separate toilet are present. The modern finish of the kitchen contrasts beautifully with the more classical elements found on the other floors.

First floor
The first floor is an impressive living level featuring a spacious through-living room. Elegant ceiling ornaments and a fireplace lend the space a warm and stately character. At the front, French doors open onto a balcony. Adjacent is a study, ideal for working from home or studying. A separate toilet is also located on this floor. The natural light from the central atrium enhances the open and inviting atmosphere here as well.

Second floor
The second floor comprises two generously sized bedrooms. The master bedroom is located at the rear and features built-in wardrobes, French doors opening onto a balcony, and air conditioning. The second bedroom is situated at the front and also has access to a balcony. Centrally located on this floor is the luxurious bathroom, equipped with a bathtub, walk-in shower, and a double vanity unit. Original ornamental details have also been preserved on this level.

Third floor
The third floor offers two spacious rooms: one bedroom at the front and one at the rear. Both rooms are fitted with air conditioning and can also be used as a study, guest room, or hobby space. This floor also features a second bathroom with a walk-in shower and double vanity unit. A separate toilet and a stylish mezzanine complete this level.

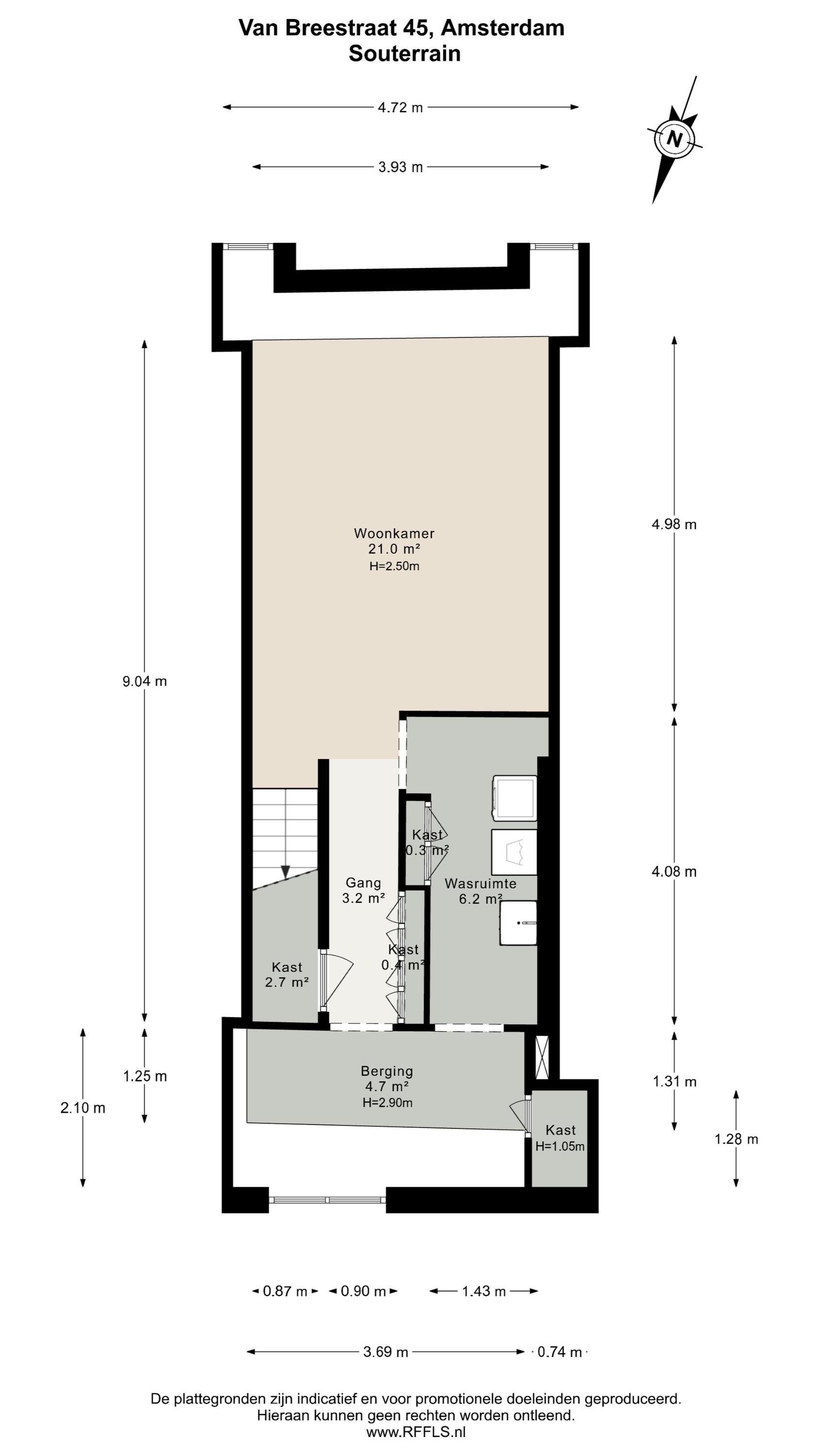
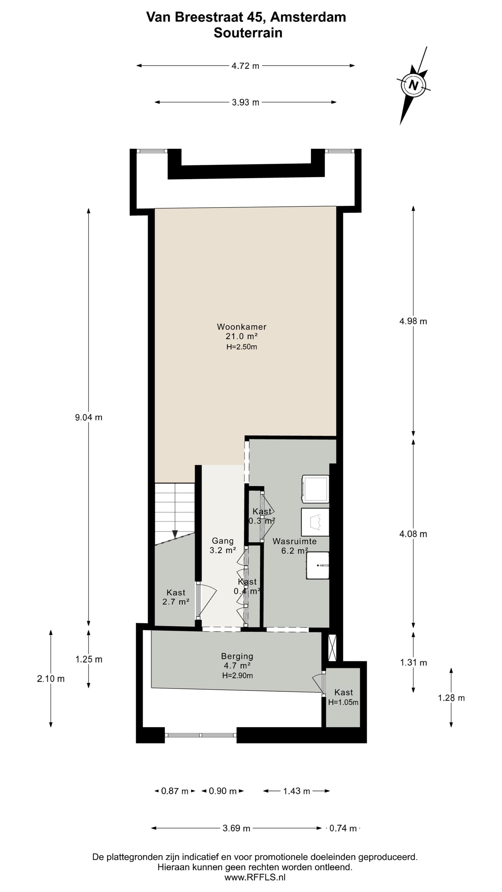
Basement
The basement includes a large multifunctional room, a laundry room with connections for a washing machine and dryer, and ample storage space. A convenient laundry chute connects the upper floors directly to the laundry room, helping to keep the home organised. Thanks to the good ceiling height and natural light, this level is suitable for various purposes, such as a playroom, gym, additional workspace, or even an extra fully-fledged living floor after the addition of sanitary facilities.

Special features & comfort
In 2020, the property was fitted with 14 solar panels, contributing to its sustainability and resulting in an Energy Label A. During the renovation in 2012, significant attention was paid to living comfort. The property benefits from high-quality sound insulation, allowing for peaceful living despite its central location. There is also an existing lift shaft, currently used as a storage cupboard, which can be converted into a passenger lift with limited modifications, making the home suitable for long-term accessibility. Furthermore, the house is fully wired for data, internet, telephone, and television. Programmable switches allow for efficient control of lighting and energy use according to personal preferences, including an “all-off” function to switch off all lights at the touch of a button.
Key Features
- Living area of 290.9 m² (measured in accordance with NEN 2580, report available);
- South-facing garden of 40.2 m² (measured in accordance with NEN 2580, report available);
- Entire property spread over five floors;
- Family home with four bedrooms;
- Fully renovated under architectural supervision in 2012;
- Playful natural light through a large central skylight and atrium;
- High-quality sound insulation;
- Security glass on the ground floor at the street side for burglary prevention;
- Provision for a passenger lift in place;
- Advanced cabling throughout for data, internet, telephone and TV;
- Programmable switches and “all-off” functionality;
- 14 solar panels with a total capacity of 5,600 Wp;
- Smart laundry chute to the basement;
- Multiple balconies;
- Air conditioning in several bedrooms;
- Freehold property (no ground lease);
- Energy label A;
- Prime location in Amsterdam Oud-Zuid;
- Transfer in consultation.

Disclaimer
This information has been compiled with due care. However, no liability is accepted for any inaccuracies, omissions or otherwise, nor for the consequences thereof. All stated measurements and surface areas are indicative. Prospective buyers have their own duty to investigate all matters that may be of importance to them. With regard to this property, the real estate agent represents the seller. We recommend engaging a qualified (NVM) real estate agent to assist you during the purchasing process. If you have specific requirements regarding the property, we advise you to make these known in good time to your purchasing agent and to carry out (or have carried out) your own independent investigations. If you do not engage a professional representative, you are deemed by law to be sufficiently expert to assess all matters of importance yourself. The NVM terms and conditions apply.

Features

Solar panels
Transfer of ownership
Asking Price
€ 4.000.000 k.k.
Status
beschikbaar
Acceptance
in overleg
Construction
Kind of house
Eengezinswoning
Building type
tussenwoning
Construction period
1900
Energy rating
A
Roof type
plat dak
Bedrooms
4
Bathrooms
2
Surface Areas And Volume
Living Area
291 m2
Other indoor space
0 m2
Exterior space attached to the buildinge
19 m2
Volume in cubic meters
1183 m3
Plot Size
115 m2
Facilities
Mechanische ventilatie
Domotica
Zonnepanelen
Aan rustige weg
In woonwijk
Baerz & Co Property Brochure

Brochure

Videos

Video Van Breestraat 45

Virtual Tours

VIRTUAL TOUR
Virtual Tour Van Breestraat 45

Nelisse Makelaarsgroep

Statenlaan 128
2582 GW Den Haag

info@nelisse.nl
+31 70 350 14 00

www.nelisse.nl

Information / Viewing request

Nicole Vrolijk profile image
Nicole Vrolijk
Real Estate Agent

Buying a Luxury Property in Amsterdam

Amsterdam offers a cosmopolitan lifestyle defined by heritage, connectivity, and discreet luxury. Residents benefit from a robust international community, curated services, and vibrant culture. The city’s enduring appeal lies in its blend of history, sophistication, and progressive spirit.