Baerz & Co is een landelijk samenwerkingsverband van zorgvuldig geselecteerde boutique luxury makelaars. Samen vormen wij één netwerk, met één gedeeld aanbod. De woningen die u op onze website ziet, zijn afkomstig van alle aangesloten kantoren binnen Baerz & Co. Daardoor is niet ieder object rechtstreeks door ons kantoor in verkoop, maar door een gespecialiseerde collega binnen ons netwerk. Heeft u een woning gevonden die u aanspreekt en wilt u meer informatie? Dan brengen wij u graag persoonlijk in contact met de betreffende verkoopmakelaar, zodat u direct en zorgvuldig wordt begeleid.

DELFT
Oostsingel 183 - 2612 HL
Netherlands

Nicole Vrolijk profile image
Nicole Vrolijk
Real Estate Agent
€6,250 p.m.
Living Area
322m2
Plot Size
879m2
Bedrooms
5

Description

Stylish and spacious detached villa for rent near the center of Delft

Located on a green and quiet lane just nearby the charming center of Delft, this beautifully maintained and luxuriously finished detached villa offers a generous living space of 332 m².

The home features five spacious bedrooms, two modern bathrooms, and a fully basemented level — perfect for additional living, working, or hobby space.

The location is ideal: within walking distance of the Delftse Hout recreational area, various sports facilities, and both primary and secondary schools. The International School of The Hague is just a 20-minute drive away. In short: a unique combination of tranquility, space, and urban convenience.

Layout:

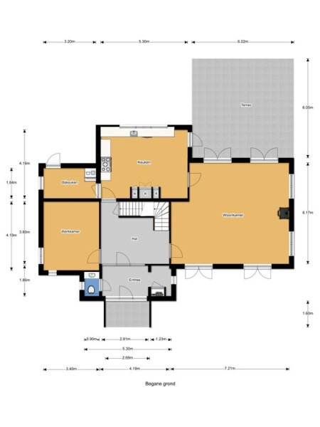
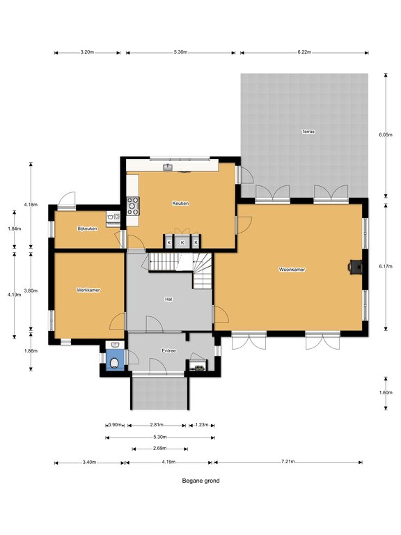
Ground floor:
Entrance with wardrobe and meter cupboard. Spacious hallway with access to the study (3.80 x 3.40 m). Guest toilet. Living room with elegant herringbone parquet flooring and fireplace. Multiple French doors provide access to the surrounding garden. Large open-plan Siematic kitchen (4.18 x 5.30 m) equipped with an American-style fridge/freezer, 6-burner gas hob with oven, extractor hood, dishwasher, and a separate combi microwave/oven. Utility room with washing machine and dryer connections. Sunny, generous terrace (6.05 x 6.22 m).

First floor:
Spacious landing with skylight. Large master bedroom with built-in wardrobes and adjoining luxurious bathroom featuring a whirlpool bathtub, walk-in shower, toilet, and double vanity. Rear-facing bedroom with dormer window. Two additional bedrooms (3.14 x 3.84 m and 3.50 x 3.84 m), both with dormer windows and playful loft spaces. Second bathroom with double washbasin and walk-in shower. Separate toilet with wall-mounted WC and washbasin.

Second floor:
Landing with storage. Spacious bedroom with Velux skylight.

Basement:
Large hallway. Toilet with washbasin. Gym with sauna and shower facilities. Multifunctional room with built-in cupboards. Storage area housing the boiler and heat pump (geothermal heating system).

Details:

High-quality finishes, mostly herringbone parquet flooring throughout;
Fully basemented;
Underfloor heating on all levels;
The house is fully furnished with curtains and light fixtures (not furnished with furniture);
Private parking on own premises (three spaces);
Rent is excluding utilities (gas, water, electricity) and municipal taxes;
Rent includes cleaning services, maintenance of technical installations, and garden maintenance;
Built in 2009;
The International School of The Hague is a 20-minute drive away;
Pets are not preferred; pets allowed only with landlord approval;
Minimum rental period: 2 years;
Energy label A;
A new international school will soon be opening in Delft.

Features

Alarm system
Transfer of ownership
Rental Price
€ 6.250 p.m.
Status
beschikbaar
Acceptance
in overleg
Construction
Kind of house
Villa
Building type
vrijstaande woning
Construction period
2009
Energy rating
A
Roof type
zadeldak
Bedrooms
5
Bathrooms
2
Surface Areas And Volume
Living Area
322 m2
Other indoor space
48 m2
Exterior space attached to the buildinge
42 m2
Volume in cubic meters
1221 m3
Plot Size
879 m2
Facilities
Mechanische ventilatie
Alarminstallatie
Beschutte ligging
Baerz & Co Property Brochure

Brochure

Floor Plans

Nelisse Makelaarsgroep

Statenlaan 128
2582 GW Den Haag

info@nelisse.nl
+31 70 350 14 00

www.nelisse.nl

Information / Viewing request

Nicole Vrolijk profile image
Nicole Vrolijk
Real Estate Agent

Buying a Luxury Property in Delft

Delft is renowned for its artistic legacy, refined lifestyle, and world-class urbanism. The community draws sophisticated residents and investors, offering bespoke residences, access to elite services, and thriving international connections.