Ons kantoor is lid van Baerz & Co Luxury Homes; een internationaal platform dat exclusieve woningmakelaars met elkaar verbindt. Neem contact op met ons secretariaat voor meer informatie over het landelijke aanbod, waarvan u hieronder een selectie kunt bekijken.

Herenhuis for sale in NIJMEGEN

NIJMEGEN Graadt van Roggenstraat 14 - 6522 AK The Netherlands


Freek van Camp profile image
Freek van Camp
Real Estate Agent
+31 6 55 70 03 60
f.van.camp@verbeek-makelaars.nl

Verbeek Makelaars
Mariaplein 6
6522 AV Nijmegen
NETHERLANDS
+31 24 22 00 111
www.verbeek-makelaars.nl
info@verbeek-makelaars.nl

Living area
256m2
Plot size
280m2
Bedrooms
5

Description

Luxurious and characterful townhouse with energy label A in Nijmegen-Oost!

This beautiful and luxurious townhouse is a property that really makes an impression. The property was completely renovated in 2020, preserving and restoring many authentic details such as high ceilings with ornate mouldings, en-suite doors and stained glass. This house exudes atmosphere and elegance, while at the same time offering modern living comfort. With no fewer than five spacious bedrooms, the possibility for a sixth bedroom, two bathrooms, three toilets and a spacious basement, this house offers all the space a family could wish for. The stately double front door, the wide balcony at the front, the deep and quiet south-facing back garden and the excellent state of maintenance give this house an extra sense of grandeur and living pleasure. Thanks to its good insulation, the house has an energy label A and is energy efficient.

The location is just as special. On the edge of the city centre, in the popular Hunnerberg neighbourhood, you will live in a quiet and green environment. At the same time, the many cosy cafés and restaurants of Nijmegen-Oost and the city centre are within walking distance. The deep south-facing back garden is a green and peaceful place where you can enjoy the sun to the fullest, while the liveliness of the city is literally around the corner. Schools, shops and several hospitals are a short distance away, while nature is also always close by with the Ooijpolder within walking distance. The proximity of the N325 also provides a quick connection to the A15 and other arterial roads. In short, a ready-to-move-in and unique home that offers the perfect balance between tranquillity, space, luxury and urban vibrancy.

Layout:

Basement
The spacious basement (approx. 44 m²) offers plenty of storage space, is divided into two interconnected rooms and has a built-in cupboard that currently serves as a wine cellar. The basement is equipped with heating and also houses the water softener. A permit has already been obtained to build a basement staircase in the front garden with separate basement access.

Ground floor
The stately double front door opens onto the vestibule, which leads to the hall with the staircase and access to the basement, the modern toilet with washbasin, the living room at the front and the dining room/kitchen at the rear. The bright living room en suite has beautiful built-in cupboards next to the en suite doors and an attractive fireplace. The modern open-plan kitchen with cooking island and bar is equipped with luxury built-in appliances (Neff), including a wine climate cabinet, Bora induction hob with built-in extractor, two ovens and a Quooker with boiling, chilled and sparkling water. Adjacent is the dining room with a fixed bench that is elegantly incorporated into the interior. The en-suite doors in the kitchen provide access to the spacious and bright conservatory with French doors to the sunny back garden. There is also a back door in the dining room. The living room, dining room and kitchen have underfloor heating.

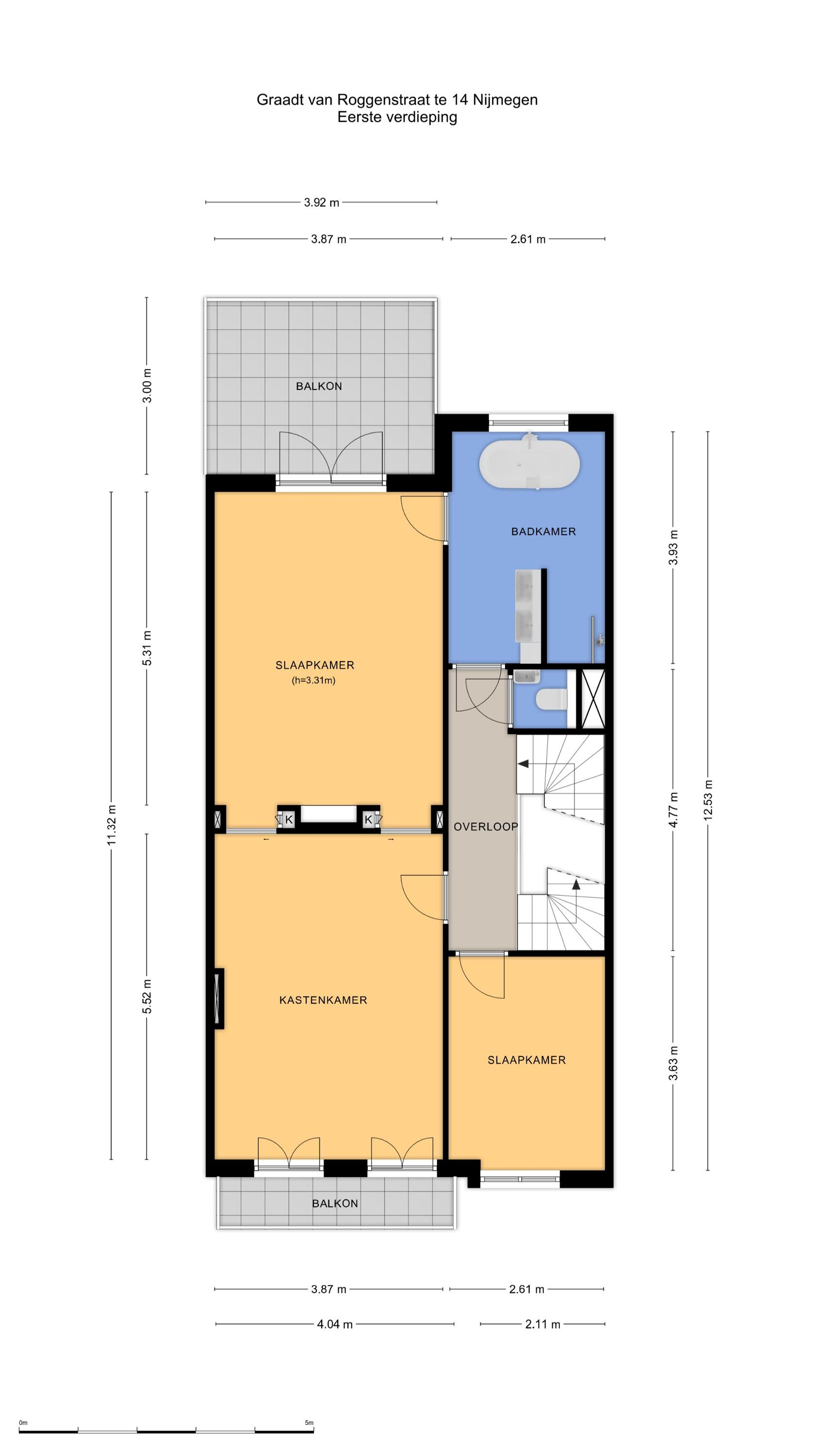
First floor
Bright landing with staircase to the top floor. The first floor has two bedrooms, a modern bathroom and a separate toilet with washbasin. The master bedroom has air conditioning and a spacious walk-in closet, accessible via two sliding doors next to the bed. At the front is a wide balcony next to the walk-in closet and at the rear is a spacious, sunny roof terrace next to the master bedroom. Originally, the master bedroom and walk-in closet were two separate bedrooms, and this layout can easily be restored. The second bedroom also has air conditioning. The luxurious, modern bathroom is accessible from both the master bedroom and the landing and features a freestanding bathtub, double walk-in shower, double sink in a vanity unit and underfloor heating. The toilet and bathroom are equipped with automatic mechanical ventilation.

2nd floor
On the second floor, there is a bright landing with a skylight, the second bathroom, and a separate toilet with a washbasin. On the second floor, there are three spacious bedrooms, each with a washbasin and air conditioning. One bedroom also has built-in wardrobes. The modern bathroom is equipped with a shower, washbasin, white goods connections and underfloor heating and is extra light thanks to the skylight. The toilet and bathroom are equipped with automatic mechanical ventilation.

Garden
The property has a spacious front garden and a surprisingly large back garden, which is quiet and green, south-facing and therefore sunny. The large lawn makes the garden ideal for relaxation, play or gardening activities. Two built-in cupboards provide practical storage space for garden equipment.

Details:
- Built around 1896.
- The property was completely renovated in 2020. This included full insulation of the house, new and insulated roofs, electrical wiring, heating including boiler and pipework.
- Plot size approx. 280 m².
- Living area approx. 256 m².
- Other indoor space (basement) approx. 44 m².
- Building-related outdoor space approx. 15 m².
- External storage space approx. 2 m².
- Volume approx. 1,120 m³.
- The property is fully insulated.
- Energy label A, valid until 18 May 2035.
- Preparations for solar panels and solar boiler have already been made.
- The bedrooms are equipped with air conditioning that can both heat and cool.
- All floors have wooden parquet flooring.
- The property was completely renovated in 2020, retaining the old details.
- The roof was renewed in 2021, the meter cupboard in 2024.
- Extensive exterior painting and renovation work was carried out at the end of the summer of 2023.
- Architectural drawings are available, created by an architect.
- Cityscape object 19th-century city expansion (protected cityscape).
- The age clause will be included in the deed of sale.

Features

Transfer of ownership
price
€ 1.375.000 k.k.
Status
beschikbaar
Acceptance
in overleg
Construction
Kind of house
Herenhuis
Building type
tussenwoning
Construction period
1896
Energy rating
A
Roof type
samengesteld dak
Bedrooms
5
Bathrooms
2
Surface Areas And Volume
Living area
256 m2
Other indoor space
44 m2
Exterior space attached to the building
15 m2
External storage space
2 m2
Volume in cubic meters
1120 m3
Plot size
280 m2
facilities
Mechanische ventilatie
Tv kabel
Airconditioning
Glasvezel kabel
Domotica
Natuurlijke ventilatie
In woonwijk
Baerz & Co Property Brochure

Brochure

Information / Viewing request

Videos

Photos

Floor Plans