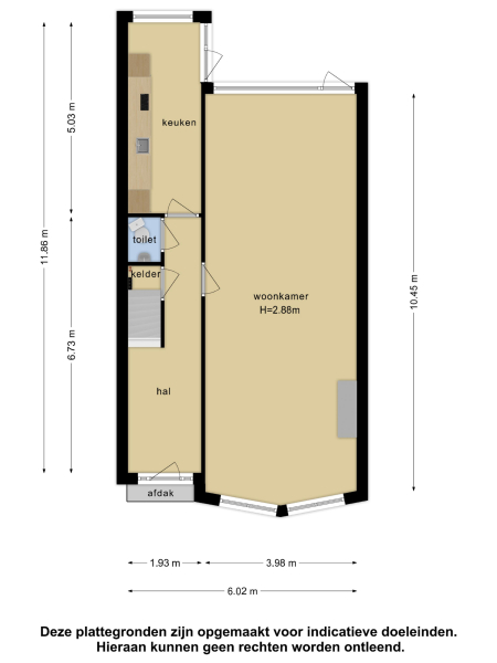
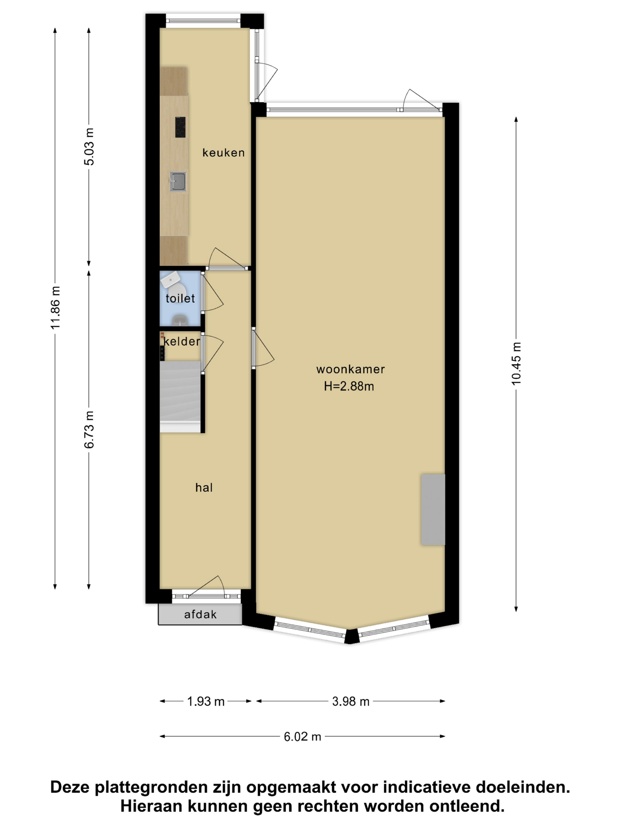
Esta casa familiar en Róterdam aúna la herencia arquitectónica con el privilegio poco común de acceso directo al agua, situada en una parcela privada de 226 m². Construida en 1927, mantiene su integridad original y ofrece aproximadamente 119 m² de superficie habitable según medición NEN-2580. Las líneas clásicas de la propiedad han sido actualizadas, incluyendo acristalamiento doble parcial y una caldera mixta de calefacción central instalada en 2021.
Cuatro dormitorios y un baño permiten una distribución equilibrada para el descanso y la actividad. La posibilidad de atracar una embarcación ligera en el jardín trasero distingue esta dirección, promoviendo un estilo de vida estrechamente vinculado al agua. Los 29 m² adicionales de espacio interior, distribuidos entre el sótano y la segunda planta, ofrecen margen para futuras adaptaciones; con pequeñas mejoras en las ventanas abuhardilladas, se podría añadir superficie habitable útil. Un espacio exterior vinculado a la vivienda, de unos 10 m², amplía la zona habitable hacia un refugio de tranquilidad.
Entre sus prestaciones destacan la conexión para TV, persianas exteriores, etiqueta energética D y la discreción y seguridad de la titularidad privada. Una propiedad definida por el legado y el potencial, diseñada para quienes valoran la autenticidad y el ritmo de vida junto a los canales de Róterdam.
Explora Róterdam con Baerz, tu asesor y buscador personal de propiedades de confianza
Navegar el dinámico mercado inmobiliario de Róterdam requiere asesores experimentados que combinen inteligencia local con un servicio internacional. El acceso discreto a propiedades fuera de mercado, estrategias de negociación a medida y un profundo conocimiento normativo permiten a compradores y vendedores sofisticados tomar decisiones precisas. Esta experiencia optimiza la inversión y protege los intereses en cada etapa del proceso.
Evite errores comunes
Los compradores internacionales a menudo desperdician tiempo valioso navegando por anuncios duplicados, desactualizados o engañosos, especialmente porque casi el 30% de las propiedades de lujo nunca aparecen en el mercado.
Los agentes del vendedor representan los intereses del vendedor, no los suyos, y simplemente solicitar información sobre una propiedad puede hacer que las agencias lo registren como su “cliente” sin su consentimiento.
Con Baerz Property Finders & Advisors, evita completamente estos problemas.
Actuamos únicamente en su nombre, ofreciendo representación independiente, orientación transparente y acceso a todas las propiedades disponibles, incluidas oportunidades privadas y fuera de mercado que otros nunca ven.
¿Le gustaría saber cómo asegurar su propio Asesor Personal de Propiedades? Contáctenos para descubrir cómo podemos representar sus intereses y abrirle el mercado completo.