Ons kantoor is lid van Baerz & Co Luxury Homes; een internationaal platform dat exclusieve woningmakelaars met elkaar verbindt. Neem contact op met ons secretariaat voor meer informatie over het landelijke aanbod, waarvan u hieronder een selectie kunt bekijken.

Dubbel benedenhuis te koop in AMSTERDAM

AMSTERDAM Warmondstraat 85 H - 1058 KS Nederland


Steijn Schothorst profile image
Steijn Schothorst
Real Estate Agent
+316 53436695
info@heerenmakelaars.nl

Heeren Makelaars
Stadionweg 75
1077 SE Amsterdam
NETHERLANDS
+31 0204702255
www.heerenmakelaars.nl
info@heerenmakelaars.nl

Woonoppervlakte
120m2
Perceeloppervlakte
122m2
Slaapkamers
3

Omschrijving

Warmondstraat 85 hs, 1058 KS Amsterdam

Heerlijk lichte en royale dubbele benedenwoning (ca. 120 m²) gelegen aan de Warmondstraat! Het appartement beschikt over een ruime woonkamer met open keuken en fraaie uitbouw, drie goed bemeten slaapkamers, een moderne badkamer en een heerlijke tuin van ca. 32 m² met schuur. Bovendien is de woning gelegen op eigen grond, dus betreft géén erfpacht!

Ligging & Bereikbaarheid

Warmondstraat 85 hs is gelegen in de populaire Hoofddorppleinbuurt in Amsterdam-Zuid: een wijk die perfect de balans weet te vinden tussen rust, bereikbaarheid en levendigheid. De straat zelf is rustig en kindvriendelijk, maar om de hoek vind je juist de energie van de stad. Hippe horeca is volop aanwezig in de buurt. Denk aan lokale favorieten zoals Drovers Dog, Lokaal van de Stad, Vlaamsch Broodhuys, en Café Schinkelhaven. Of je nu op zoek bent naar een gezellige brunchplek, een borrel met vrienden of een goede espresso, alles is op loopafstand te vinden. Voor wie houdt van groen en buiten zijn, liggen het Vondelpark en het Rembrandtpark op slechts enkele minuten fietsen. Ook het nabijgelegen Westlandgracht biedt een rustige wandelomgeving langs het water. Ideaal voor een ochtendrun, een wandeling met de hond of een zomerse picknick. Wat betreft bereikbaarheid zit je hier uitstekend. De Ring A10 is binnen enkele minuten te bereiken via de S106 en met diverse tram- en buslijnen (zoals lijn 2 en 15) is het centrum van Amsterdam of station Lelylaan snel bereikbaar. Station Zuid en Schiphol zijn eveneens vlot te bereiken met het OV of de fiets. Parkeren is mogelijk via het vergunningsstelsel van stadsdeel Zuid. Er geldt momenteel een relatief korte wachttijd voor een parkeervergunning, en er is doorgaans voldoende parkeergelegenheid in de straat of directe omgeving. Ook is er een mogelijkheid tot het huren van een parkeerplaats in nabijgelegen parkeergarages.

Indeling

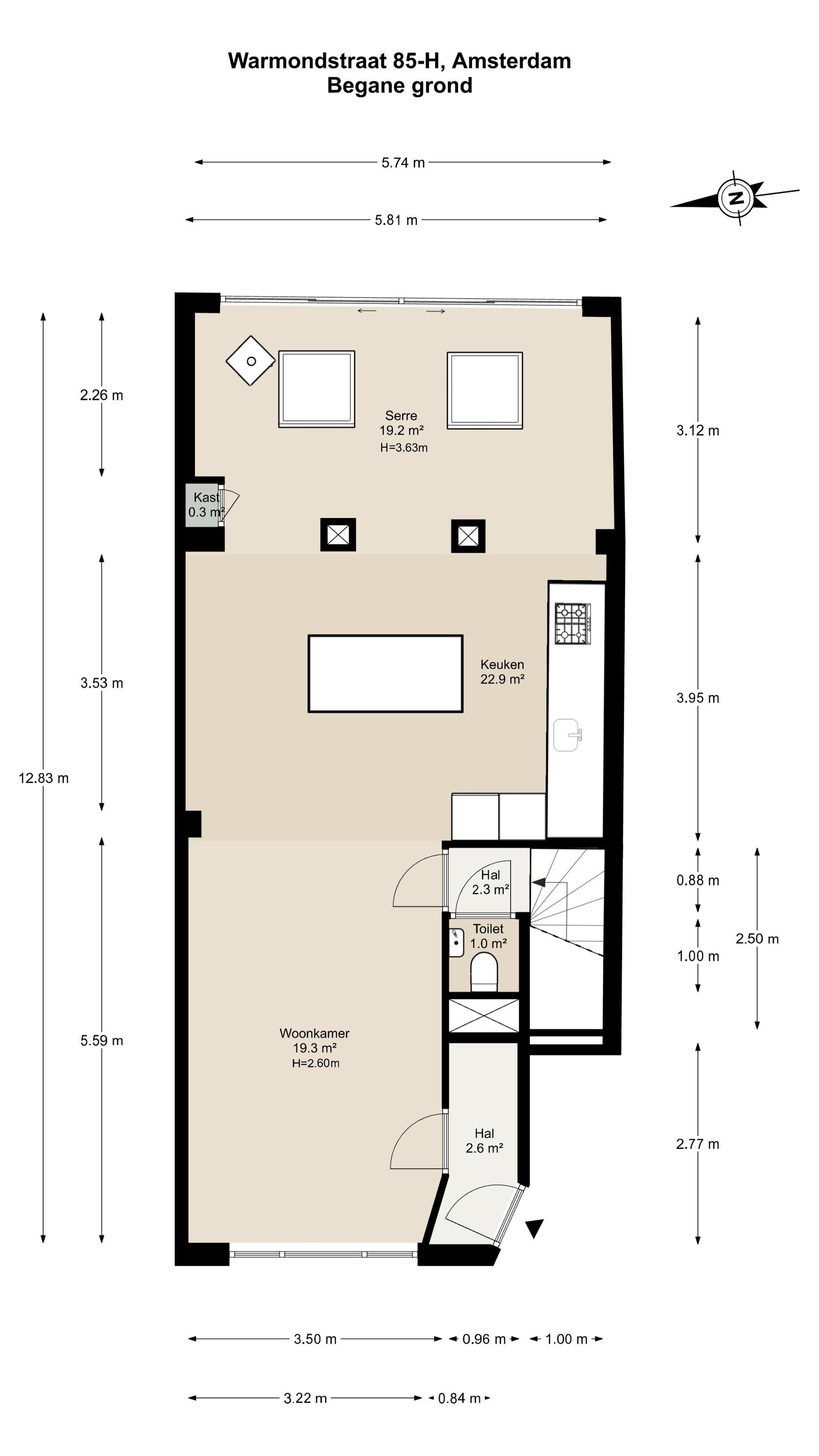
Begane grond

Bij binnenkomst betreedt u de woning via een tochtportaal dat toegang biedt tot de rest van het appartement.

Aan de voorzijde bevindt zich de royale woonkamer, waar eenvoudig een comfortabele zithoek kan worden ingericht. Centraal in de woning treft u de open keuken met een stijlvol kookeiland en een gezellig bargedeelte. De keuken is uitgerust met hoogwaardige inbouwapparatuur, waaronder een 4-pits inductiekookplaat met geïntegreerde afzuiging, een vaatwasser, een koel-/vriescombinatie, een combi-oven en een Quooker. Een paar treden lager komt u in de recent gerealiseerde uitbouw met dakramen, die veel natuurlijk licht binnenlaten. Hier is momenteel een sfeervolle eetruimte ingericht, met daarnaast een extra zithoek rondom een moderne gashaard. Via plafondhoge glazen schuifdeuren bereikt u de fraai aangelegde tuin van circa 32 m², gelegen op het oosten. Daarnaast beschikt u over een praktische berging in de tuin.

Souterrain

Via de centraal gelegen trap in de woonkamer loopt u naar het souterrain. Hier bevinden zich drie goed bemeten slaapkamers en een moderne badkamer. De twee slaapkamers aan de achterzijde zijn ideaal als kinder- of werkkamer; de ruime master bedroom ligt aan de voorzijde van de woning. De badkamer is stijlvol afgewerkt en voorzien van een royaal ligbad, een inloopdouche, een dubbele wastafel met meubel en een toilet. In de gang vindt u bovendien een handige inbouwkast én een aparte berging met aansluitingen voor de wasmachine en droger.

Bijzonderheden:

- Appartementsrecht van ca. 120 m² (gemeten conform NEN2580 meetinstructie)
- Drie goed bemeten slaapkamers
- Heerlijke tuin (ca. 32 m²) met schuur gelegen op het oosten
- Moderne uitbouw met royale lichtinval
- Energielabel A
- Gezonde VvE, MJOP beschikbaar
- VvE servicekosten € 135,- per maand
- Gelegen op eigen grond, dus géén erfpacht
- Oplevering in overleg

Deze informatie is door ons met de nodige zorgvuldigheid samengesteld. Onzerzijds wordt echter geen enkele aansprakelijkheid aanvaard voor enige onvolledigheid, onjuistheid of anderszins, dan wel de gevolgen daarvan. Alle opgegeven maten en oppervlakten zijn indicatief. Koper heeft zijn eigen onderzoeksplicht naar alle zaken die voor hem of haar van belang zijn. Met betrekking tot deze woning is de makelaar adviseur van verkoper. Wij adviseren u een deskundige (NVM-)makelaar in te schakelen die u begeleidt bij het aankoopproces. Indien u specifieke wensen heeft omtrent de woning, adviseren wij u deze tijdig kenbaar te maken aan uw aankopend makelaar en hiernaar zelfstandig onderzoek te (laten) doen. Indien u geen deskundige vertegenwoordiger in-schakelt, acht u zich volgens de wet deskundige genoeg om alle zaken die van belang zijn te kun-nen overzien. Van toepassing zijn de NVM voorwaarden.

Kenmerken

Overdracht
Vraagprijs
€ 1.250.000 k.k.
Status
verkocht onder voorbehoud
Aanvaarding
in overleg
Bouw
Soort woonhuis
Dubbel benedenhuis
Soort bouw
appartement
Bouwjaar
1931
Energieklasse
A
Soort dak
samengesteld dak
Slaapkamers
3
Badkamers
1
Oppervlakten en inhoud
Woonoppervlakte
120 m2
Overige inpandige ruimte
0 m2
Externe bergruimte
5 m2
Inhoud
428 m3
Perceeloppervlakte
122 m2
faciliteiten
Tv kabel
Natuurlijke ventilatie
Aan bosrand
Aan water
Aan park
Aan rustige weg
In woonwijk
Aan vaarwater
Baerz & Co Property Brochure

Brochure

Informatie / bezichtigingsaanvraag

Video's

Foto's

Plattegronden