Ons kantoor is lid van Baerz & Co Luxury Homes; een internationaal platform dat exclusieve woningmakelaars met elkaar verbindt. Neem contact op met ons secretariaat voor meer informatie over het landelijke aanbod, waarvan u hieronder een selectie kunt bekijken.

ZALTBOMMEL
Tolstraat 21 - 5301 AX
Nederland

Jeanette van Haaften profile image
Jeanette van Haaften
Real Estate Agent
€1.000.000 k.k.
Woonoppervlakte
299m2
Perceeloppervlakte
204m2
Slaapkamers
3

Omschrijving

Op rustige locatie binnen de vesting staat dit met zorg onderhouden woon-werkpand, met voor een creatieve ondernemer een zee aan ruimte voor wonen, atelier, studio of galerie. Een uitgelezen plek nabij alle voorzieningen en de Waal, waarop vanaf het dakterras van 45 m² een mooi zicht is. Dubbele bewoning behoort hier tot de mogelijkheden.

Tolstraat 19:
Entree, luxe keuken annex eetkamer met hoog balkenplafond, bijkeuken en toilet op de begane grond.
Zonnige woonkamer met vide en aangrenzend dakterras, slaapkamer en een luxe badkamer op de eerste verdieping.
Zolderkamer en werkkamer onder de gerestaureerde kap op de tweede verdieping.

Tolstraat 21:
Tweede entree, (woon)kamer en een grote studio op de begane grond.
Slaapkamer, badkamer, separate toiletruimte en keuken aan het dakterras op de eerste verdieping.
Bergzolder onder de geïsoleerde kap op de tweede verdieping.

Bruto-inhoud: circa 1.265 m³
Gebruiksoppervlakte wonen: 299 m²
Perceeloppervlakte: 204 m²
Bouwperiode: 17e eeuw

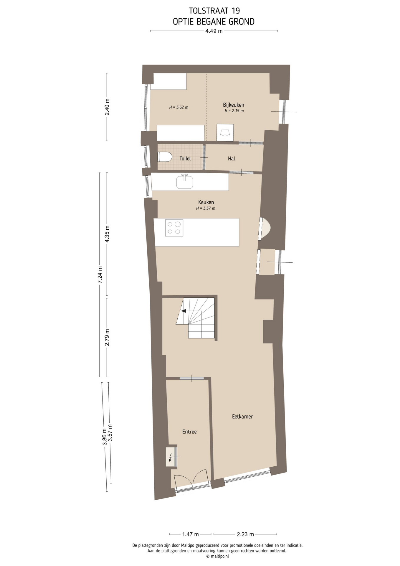
Indeling begane grond Tolstraat 19:
Via een royale entree is de keuken annex eetkamer bereikbaar. Het hoge 17e-eeuwse balkenplafond is een echte eyecatcher en een hoog raam aan de zuidzijde zorgt voor een zee aan licht. De keuken is voorzien van een groot kookeiland en diverse apparatuur. De in 2020 aangelegde keuken vormt een centrale functie in dit échte woon-werkpand. Aangrenzend bevindt zich de studio, een multifunctionele ruimte van circa 65 m², waar de huidige eigenaren een foto- en muziekstudio hebben.

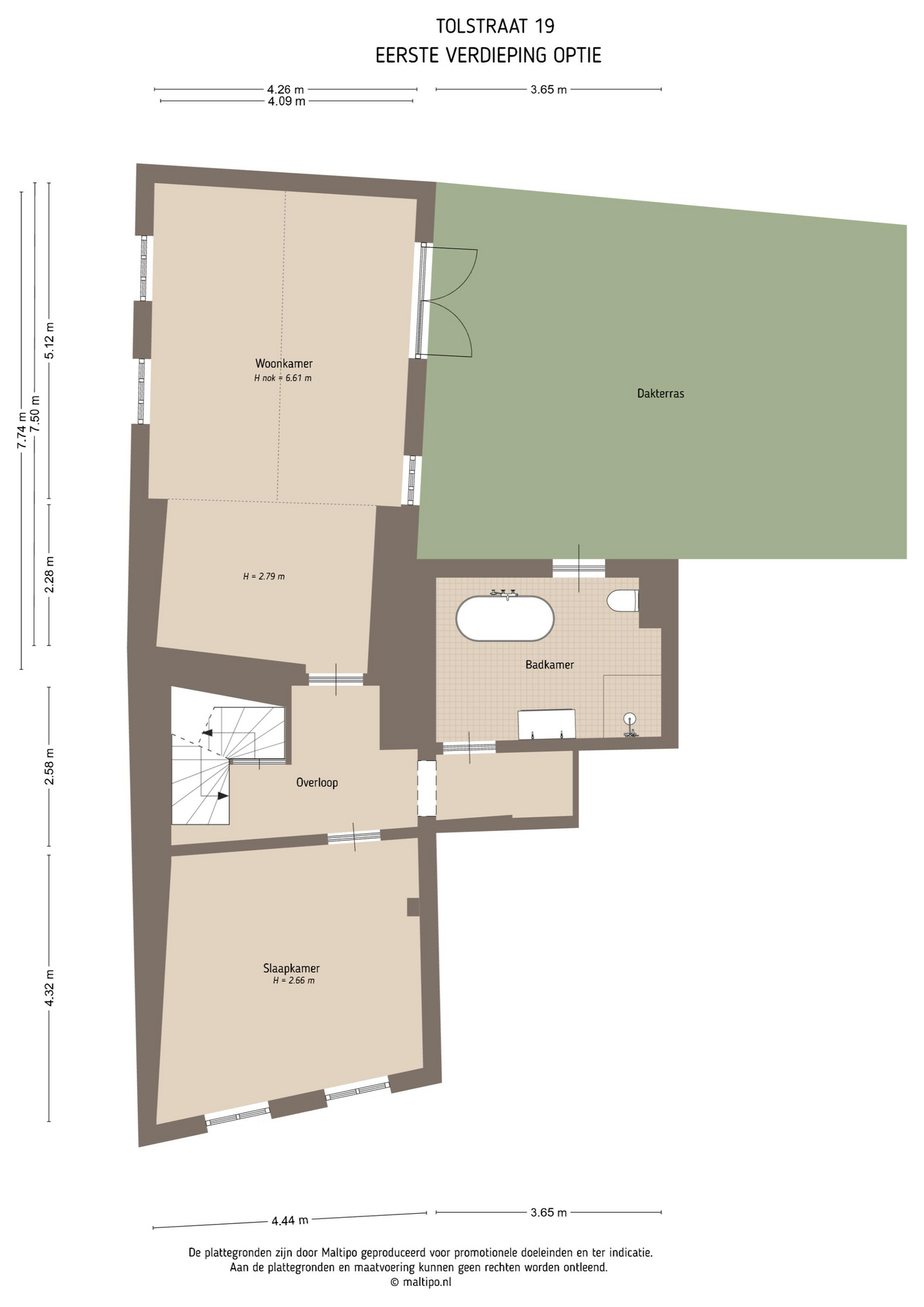
Indeling eerste verdieping Tolstraat 19:
Via een brede eigentijdse trappartij komen we op de overloop. Aan de achterzijde treffen we de iets hoger gelegen woonkamer. Voor de ramen op het westen is er zicht op de jachthaven en aan de oostzijde zijn dubbele deuren die toegang geven tot het dakterras. De nok van het achterhuis is bij de recente restauratie volledig in het zicht gelaten, waardoor er een vrije hoogte van ruim 6,5 meter is ontstaan. Verder is er een royale en zonnige slaapkamer en een luxe badkamer (2020) met deur naar het dakterras. Deze badkamer is ingericht met een vrijstaand bad, inloopdouche, wastafelmeubel en toilet. Via de overloop zijn de vertrekken die aan Tolstraat 21 zijn toebedeeld te bereiken.

Indeling tweede verdieping Tolstraat 19:
Via een eeuwenoude wenteltrap bereiken we de zolderkamer. De historie van het pand is hier duidelijk voelbaar. Bij de restauratie van de kap in 2021 is het houtwerk volledig gerestaureerd, de kap opnieuw beplankt en aan de buitenzijde hoogwaardig geïsoleerd.
Deze zolderkamer leent zich uitstekend als logeerkamer. Via een toog is een werkruimte met zicht op de woonkamer te bereiken. De huidige eigenaren gebruiken deze ruimte als leeskamer, waarbij het dakvenster zorgt voor mooi ochtendlicht.

Indeling begane grond Tolstraat 21:
Via een entree met oude estrikenvloer is de woonkamer bereikbaar. Deze woonkamer is zeer eenvoudig bij de studio te betrekken, waardoor er een multifunctionele ruimte van circa 86 m² ontstaat. Deze studio leent zich door de uitstekende akoestiek voor meerdere doeleinden, zoals bijvoorbeeld een yoga- of pilatesstudio, trainingsruimte, atelier of galerie.
In de fotoreportage is ook te zien hoe de ruimte kan worden ingericht als grote leefruimte/woonkamer met open keuken. Bij zakelijk gebruik dan wel dubbele bewoning is de tweede entree ideaal.

Indeling eerste verdieping Tolstraat 21:
Via een rechte trap is de overloop bereikbaar. Hieraan liggen de separate toiletruimte, de keuken, een slaapkamer en de badkamer. De keuken is compact, maar gunstig gesitueerd, grenzend aan het dakterras. De badkamer is ingericht met een ligbad, inloopdouche en wastafelmeubel.
Een Velux-dakvenster zorgt voor een zee aan licht.

Indeling tweede verdieping Tolstraat 21:
Op deze bouwlaag bevindt zich een grote bergzolder onder de eind jaren negentig vernieuwde en geïsoleerde kap. Hier hangt de HR-ketel en dakvensters zorgen voor voldoende daglicht.
De bergzolder is bereikbaar via een vlizotrap vanaf de overloop.

Bijzonderheden:
Dit beeldbepalende stadspand is door de loop der jaren aangepast aan de eisen van deze tijd.
De studio op de begane grond heeft vloerverwarming en is volledig geluidsgeïsoleerd, omdat hier in het verleden een geluidsstudio gevestigd was. De woning is bovendien goed verduurzaamd: op de meeste plaatsen zijn voorzetwanden aangebracht, de ramen op de begane grond zijn dubbel beglaasd en de kap is voorzien van geïsoleerde sandwichelementen en PIR-isolatie. Ook het platte dak is geïsoleerd. De woning wordt verwarmd middels een gasgestookte cv-installatie met een Nefit HR-ketel uit 2020. Op de hoge kap zijn 19 zonnepanelen geplaatst.
Het zonnige en privé gelegen dakterras (45 m²) is onder supervisie van een tuinarchitect aangelegd. Er is een fijne sfeer gecreëerd, compleet met olijfbomen, een pergola en sfeervolle beplanting. Door de beschutte ligging is er het hele jaar door wel een plekje te vinden om van de zon te genieten of om in de ochtend met een cappuccino naar de rivier te turen.
Door de aanwezige tweede entree, de indeling en de voorzieningen op beide adressen zou een eventuele woningsplitsing hier in theorie tot de mogelijkheden kunnen behoren, altijd onder voorbehoud van de benodigde vergunningen. In de fotopresentatie zijn zowel plattegronden als renders opgenomen die laten zien hoe zo’n splitsing eruit zou kunnen zien.
Het pand staat in de luwte van het gezellige centrum aan een rustig straatje met eenrichtingsverkeer. Het vestingstadje Zaltbommel kent een ruim voorzieningenniveau met diverse scholen en sportclubs. Op loopafstand ligt een divers aanbod aan winkels, boetiekjes, een theater en verschillende horecagelegenheden. De Albert Heijn ligt op slechts 500 meter afstand.
Ook het NS-station bevindt zich op loopafstand en meerdere basisscholen liggen binnen bereik. De Waalkade ligt op nog geen 50 meter afstand en vormt een uitstekend vertrekpunt voor eindeloze wandel- en fietstochten door de prachtige omgeving. In de nabijheid van het pand is voldoende parkeergelegenheid voor bezoekers.
Als u op zoek bent naar een royaal, op en top woon-werkpand dat door de aanwezige structuur ook zeer geschikt is voor dubbele bewoning, maakt u dan gerust een afspraak voor een bezichtiging.

Kenmerken

Zonnepanelen
Alarm system
Overdracht
Vraagprijs
€ 1.000.000 k.k.
Status
beschikbaar
Aanvaarding
in overleg
Bouw
Soort woonhuis
Herenhuis
Soort bouw
tussenwoning
Bouwjaar
1750
Energieklasse
C
Soort dak
samengesteld dak
Slaapkamers
3
Badkamers
2
Oppervlakten en inhoud
Woonoppervlakte
299 m2
Overige inpandige ruimte
15 m2
Gebouwgebonden buitenruimte
45 m2
Inhoud
1265 m3
Perceeloppervlakte
204 m2
faciliteiten
Alarminstallatie
Dakraam
Glasvezel kabel
Zonnepanelen
Natuurlijke ventilatie
Aan rustige weg
In centrum
Baerz & Co Property Brochure

Brochure

Video’s

360 Panorama’s

360°
360 Panorama - Tolstraat 21
360°
360 Panorama - Tolstraat 21
360°
360 Panorama - Tolstraat 21
360°
360 Panorama - Tolstraat 21

Plattegronden

Bijzonder Wonen Makelaardij

Heilige Geeststraat, 11
5301CP Zaltbommel

info@bijzonderwonen.com
+31 41 868 00 50

www.bijzonderwonen.com

Informatie / bezichtigingsaanvraag

Jeanette van Haaften profile image
Jeanette van Haaften
Real Estate Agent